Leistungsvergleich der Zimmererjugend Sachsen 2001.
Jedes Jahr werden in Deutschland in den einzelnen Bundesländern die Leistungsvergleiche der Handwerksjugend abgehalten. Die Sieger können dann am bundesdeutschen und eventuell sogar am europäischen und am internationalen Leistungsvergleich teilnehmen. Hier ein Bericht über den Leistungsvergleich der Zimmerer in Sachsen 2001.
I. Die Aufgabenstellung.
Am 29. September 2001 fand im Ausbildungszentrum der HWK-Leipzig der Leistungsvergleich der Zimmererjugend von Sachsen statt. Um 7:00 Uhr trafen sich die Teilnehmer (fünf aus Leipzig, drei aus Chemnitz, drei aus Dresden und einer aus Bautzen) und Betreuer-Bewerter (zwei aus Leipzig, einer aus Chemnitz und einer aus Dresden) zur Ausgabe der Aufgabe.
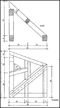
Die Zeit für das Bauteil wurde mit 8 Arbeitsstunden festgelegt. Die Aufrissarbeiten mußten auf Grund der Verschiedenheit einmal im Profil und einmal in der Fläche ausgeführt werden und waren nach meinem Erachten recht anspruchsvoll, weil auch die Holzverbindungen (Verzapfungen und Aufklauungen) auf dem Schnürboden zu erkennen sein mussten. Diese Arbeit nahm ungefähr 2 Stunden in Anspruch.
Wer ein gutes räumliches Vorstellungsvermögen besaß, konnte danach an die Ausarbeitung der einzelnen Bauteile gehen, welches ausschließlich mit japanischen Werkzeugen (DICK-Katalog) geschah. Dadurch wurde die Qualität der Schnitte hervorragend!
II. Schwierigkeiten und Probleme.
Schwierigkeiten hatten einige Teilnehmer bei der Klauenschiftung im Querbauprofil. Sie erkannten nicht, dass die Lotschmiege der Klauenschifter die Spiegelseite des Kehlwechsels vom Hauptdachprofil ist. Auch bereitete es einigen wenigen prinzipielle Schwierigkeiten einen Kehlwechsel herzustellen, welcher zwei Auflagerhöhen hat (die Höhen der Firstpfetten sind unterschiedlich). Der Großteil der Teilnehmer fertigte das Bauteil aber in einer sehr guten bis befriedigenden Qualität.
Acht Teilnehmer brachten ihre Arbeiten zu Ende, die anderen mussten die Erfahrung machen, dass bei einem solchen Leistungsvergleich das Wissen und Können der »normalen« Berufsausbildung nicht ausreicht und es für den Erfolg bei solchen Ereignissen auch viel zusätzlicher übung bedarf. Um 15:30 Uhr war der erste Teilnehmer fertig, die anderen folgten in kurzen Abständen.
III. Die Ergebnisse.
Bei der Bewertung war unter den ersten drei Plätzen fast kein Unterschied in der Qualität zu finden, so dass als letztes Bewertungsmerkmal der Zeitunterschied ausschlaggebend war (Zeitunterschied von Platz 1 bis Platz 3 ca. 10 Minuten).
Der erste Platz wurde an Herrn Teuber aus Leipzig vergeben!
Den zweiten Platz errang Herr Molch aus Chemnitz.
Der dritte Platz ging an Herrn von Heiden aus Dresden. Dies hat mich sehr gefreut,
da wir erst erst im zweiten Jahr an einem solchen Leistungsvergleich teilnahmen.
Das Dresdener Team, welches mit mir unterwegs war, belegte zusätzlich noch die Plätze 8
und 9. Außerdem war von uns die einzige weibliche Teilnehmerin dabei! Eigentlich schade, da
ich auch in anderen Ausbildungzentren schon weibliche Zimmererlehrlinge gesehen habe und mit
meinen Erfahrungen aus der Zimmererausbildung mit Fachhochschulreife sagen kann Die Mädchen
können es genau so gut
.
IV. Anhang.
Downloads: Diesen Artikel als PDF-Datei downloaden. :: Komplett alle ZiHi-Seiten als PDF-Datei downloaden.
URL dieses Artikels: http://www.zimmerin.de/zihi/ausbildung/sachen2001/


